Aller au contenu principal

Cellule d’activité – Emplacement stratégique à Cormontreuil

Location Entrepôts / Activités / Cormontreuil Périphérie

Disponibilité
Surface 426m²

Description

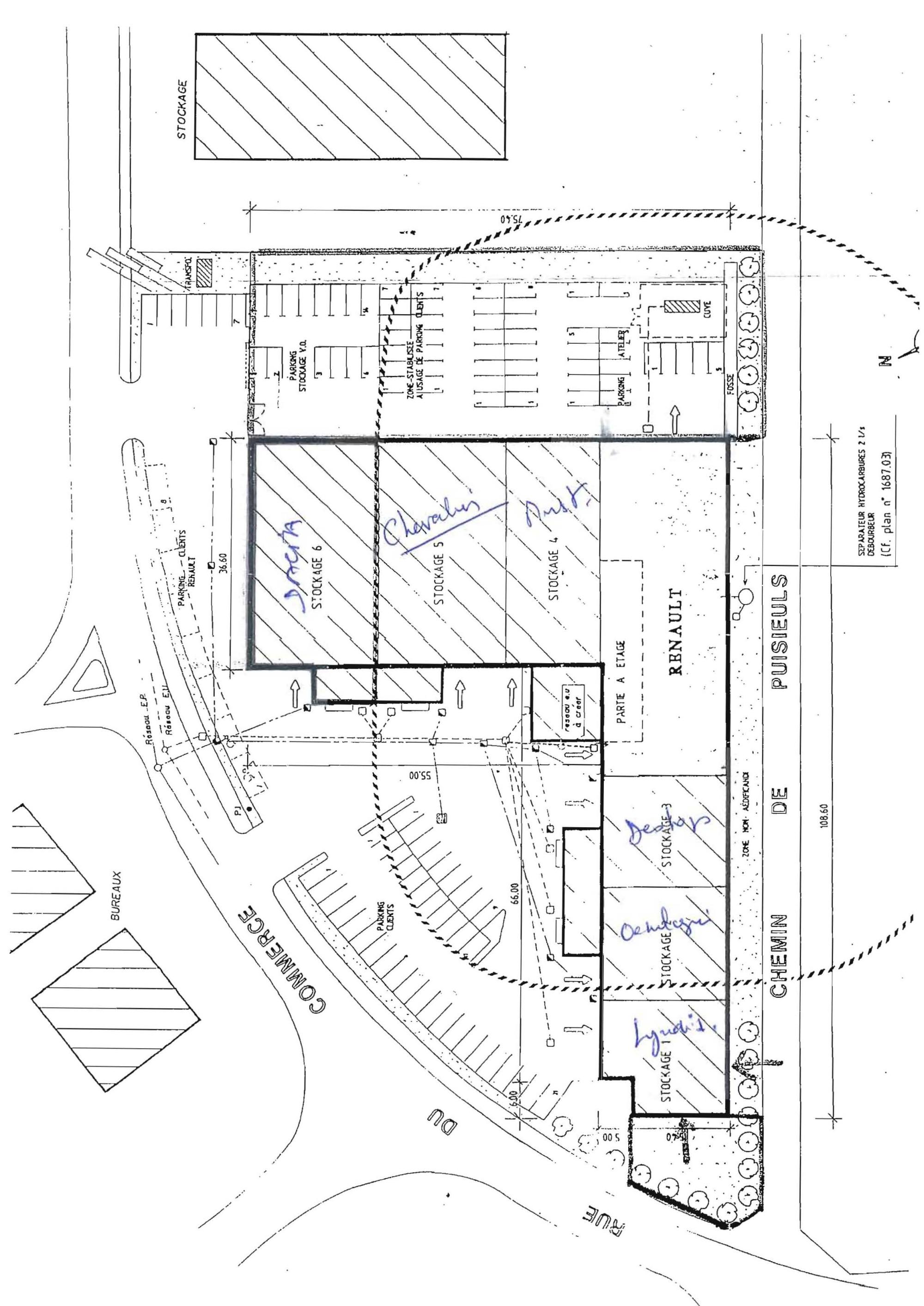
Cellule de 426 m² dans la zone commerciale de Cormontreuil, composée de 62 m² de bureaux et 364 m² d’entrepôt.
Emplacement stratégique avec accès rapide et visibilité optimale.
Bureaux fonctionnels en façade, entrepôt de plain-pied facilement exploitable.
Parking disponible devant la cellule, au sein d’un ensemble commercial dynamique.
Local adapté à une activité mixte tertiaire et logistique.

Prestations

Disponibilité
Surface 426m²

Situation

Situation Périphérie

Prestations supplémentaires

  • Accès Poids Lourds
  • Accueil
  • Cloisons amovibles
  • Cuisine
  • Porte Sectionnelle

Sol : Béton

2 photos 1 plan Localisation

Cellule d’activité – Emplacement stratégique à Cormontreuil

Je suis interessé !

Je souhaite avoir des informations concernant ce bien.

Retour en haut de page